-
大视野立体视显微镜WYT-DP1视场显微镜是一种视场广阔的新型显微镜,更符合人机工学?,眼睛持久观察不易疲劳。同时能兼顾图像清晰,观察舒适,操作方便,立体感强的特性。可同时配置三个物镜,方便更换不同的物镜倍率。具有视场宽广,分辨率高,立体感强,景深大,成像清晰等特点。广泛用于生物解剖、农林业的种子检查筛选、 公安部门的刑侦检测,电子精密部件装配检修,纺织业的品质控制、文物、邮票的辅助鉴别及各种物质表面观察等领域。
◆性能特点:
1、立体光学成像,提供2X、4X、6X、8X、10X、15X的物镜可选。
2、可同时安装三个物镜,转换物镜转塔能方便地变换不同的倍率。
3、可在自然坐姿状态下观察,头部颈部可自由活动,眼睛不疲劳。
4、超长工作距离,具有超大的景深和视野,操作者不受任何限制。
◆典型应用:
1、教学 2、生物解剖 3、农、林、牧、 4、机械加工业
5、刑侦检测 6、电子精密部件装配检修7、线路板焊点检测
8、纺织、印刷、建筑 9、考古 10、各种材料表面观察
一、显微镜参数:
序号
名称
技术参数
01
物镜
2X 工作距离:208mm 物方线视?。?68mm
4X 工作距离: 98mm 物方线视场: 68mm
6X 工作距离: 98mm 物方线视?。?/span>22.7mm
02
观察头
观察头可自由转动,伸展范围850mm
03
总支架
支架稳重可靠,滑动自如,垂直580mm
04
底座
底座尺寸400X300X20mm
05
立臂
立臂高度500mm 行程200mm
06
光源
外置LED调节器,独立开关,亮度可调,发热量低,寿命长
07
仪器重量
净重:5.0kg 毛重:6.5kg
08
仪器尺寸
仪器尺寸30X51X53.5(cm)
二、可选镜头参数:
编号
物镜倍率
工作距离(mm)
物方线视场
01
8X
58
17
02
10X
46
13.6
03
15X
50
9.1
04
6X(SL)
115
22.7
一、显微镜选购件:
序号
名称
技术参数
01
光源
双支冷光源
02
支架
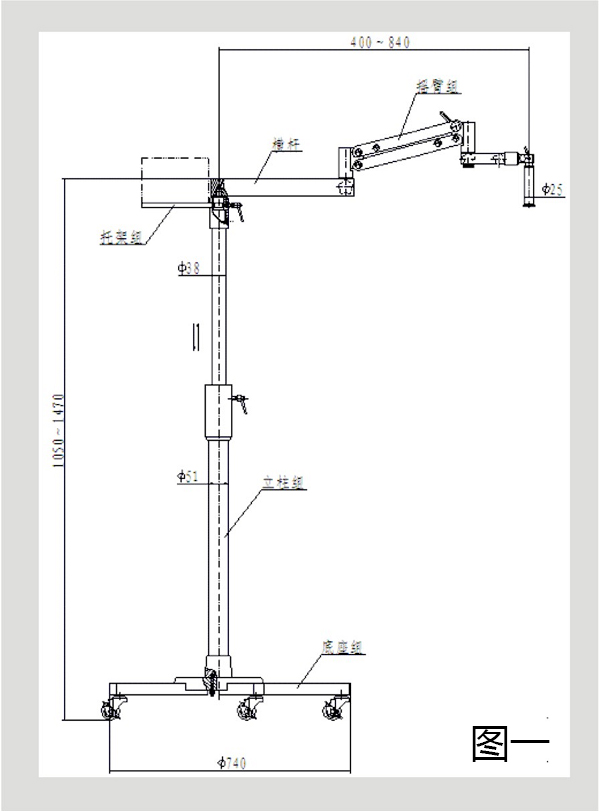
落地式支架(图1)
03
支架
摆臂式支架(图2)


序号
名称
主要技术参数
数量
单位
01
显微镜主机
1
台
02
物镜
2X 4X 6X
3
只
03
目镜
1
个
04
外置照明调节器
1
个
07
载物台
1
个
08
电源线
1
根
09
随机附件
装箱单,说明书,合格证,保修卡
各1
份

全国服务热线